Get new listings emailed daily! JOIN SIGN IN
Patti Evans
Real Estate Agent Anna Maria Island, Bradenton and Sarasota Real Estate
REALTOR®
(941) 773-0877
Facebook Icon LinkedIn Icon Zillow Icon 
Refine Search
$699,000

1001 Manatee Avenue E Bradenton, FL 34208 Commercial - Pending

  • 1001 Manatee Avenue E, Bradenton, FL 34208 Main Photo

25 Total Photos [Click to View All]

Description

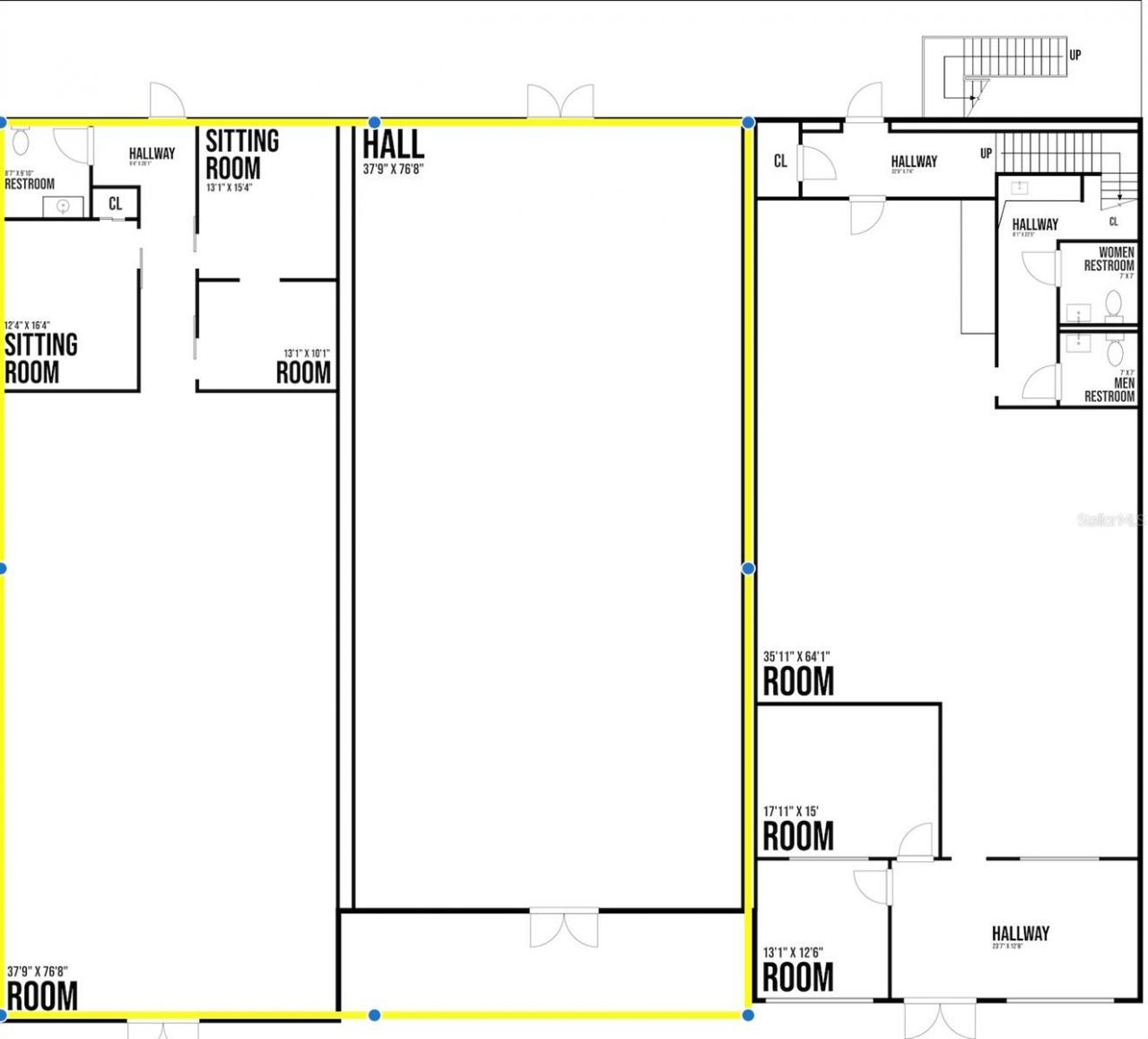
Under contract-accepting backup offers. Prime commercial opportunity located at 1001 Manatee Avenue East in old downtown Bradenton, Florida. The property offers approximately 52 feet of frontage along Manatee Avenue East with excellent visibility and an AADT of approximately 22,500 vehicles per day. The site includes approximately 21 shared on-site parking spaces (with the property at 1007 Manatee Avenue) and is conveniently located minutes from Downtown Bradenton, US-41, and nearby residential neighborhoods. The property is zoned BR (Business/Residential) and T4-O (Transect 4 - Open) which support neighborhood-scale commercial, office, residential, and mixed-use development consistent with the City of Bradenton Comprehensive Plan. Uses and development standards are subject to City review and approval. Located in central Manatee County and near new multifamily development and just south of the Bradenton Riverwalk, this property presents a strong opportunity for owner-users or investors seeking a well-positioned commercial asset. The property features an updated one-story building totaling approximately 2,100 square feet of open space. The space is well suited for a boutique, studio, shared workspace, or a variety of commercial or event-related uses. The interior includes multiple private rooms and one restroom. Located east of the building is a covered tiki hut measuring approximately 30' x 70' (+2,100 square feet), providing a courtyard-style event area. The property has a proven history of use for weddings, meetings, and private celebrations, with seating capacity for approximately 80 guests.The property at 1007 Manatee Avenue East is also available for sale and includes a s 2 story office building. Owner financing maybe available. There is also a food truck that is available for $40,000.

Property Highlights

Property Type: Commercial -
Cooling: Central Air
Lot Size: 0.14 Acres
Stories: 1.0
Taxes: $4,285
Year Built: 1926

General Information

County: Manatee
Subdivision: E M THORP
Listed By:
Jon Franz INTEGRITY REAL ESTATE ADVISORS 941-448-4884

Property Features

Days on Site: 87
Directions: From I-75 head west on Manatee Avenue E or State Road 64 for about 7 miles to address. Property is located in old downtown Bradenton on the north side of the road.
Exterior: Block
Flood Zone Code: X
Foundation: Slab
Home Warranty Y/N: No
Listing Terms: Cash, Conventional, Owner Financing
Lot Dimensions: 0.14
Number of Restrooms: 1
Ownership: Corporation
Property Attached Y/N: No
Property Sub-Type: Mixed Use
Showing Instructions: Supra Lock Box, Appointment Only
Special Sale Provisions: None
Water Access Y/N: No
Zoning: BR_T4-O
$699,000
Pending
BEDS0 BATHS SQUARE FEET4,200 MLS#TB8471541
STATUSPending PROPERTY TYPECommercial - SUBDIVISIONE M THORP

Get in Touch

Contact an agent to learn more about

1001 Manatee Avenue E, Bradenton, FL 34208.

Contact Form

Preferred Communication Method:

About this area

Florida/Bradenton
Bradenton

View Listings

About Bradenton

Bradenton—situated on Florida's Gulf Coast—is a vibrant city that blends coastal charm with cultural richness. Surrounded by pristine beaches and the tranquil waters of the Manatee River, Bradenton offers a relaxed coastal lifestyle. The downtown Riverwalk district—with its art galleries, shops, and waterfront parks—reflects the city's commitment to culture and recreation. Home to the Village of the Arts, Bradenton celebrates local creativity and hosts events like the Bradenton Blues Festival. With a mix of historic neighborhoods, modern amenities, and a warm community spirit, Bradenton provides residents and visitors alike with a diverse and inviting Florida experience.


Learn More About Living in Bradenton, Florida

About this community

Disclaimer: All information deemed reliable but not guaranteed. All properties are subject to prior sale, change or withdrawal. Neither listing broker(s) or information provider(s) shall be responsible for any typographical errors, misinformation, misprints and shall be held totally harmless. Listing(s) information is provided for consumers personal, non-commercial use and may not be used for any purpose other than to identify prospective properties consumers may be interested in purchasing. Information on this site was last updated 04/30/2026. The listing information on this page last changed on 04/30/2026. The data relating to real estate for sale on this website comes in part from the Internet Data Exchange program of Delta Media Group MLS (last updated Thu 04/30/2026 12:17:33 AM EST) or Stellar MLS (last updated Wed 04/29/2026 11:59:12 PM EST). Real estate listings held by brokerage firms other than Wagner Realty may be marked with the Internet Data Exchange logo and detailed information about those properties will include the name of the listing broker(s) when required by the MLS. All rights reserved.

Listing data and photos distributed by MLSGRID
Member Participants (and their affiliated licensees, if applicable) shall indicate on their websites that IDX information is provided exclusively for consumers’ personal non-commercial use, that it may not be used for any purpose other than to identify prospective properties consumers may be interested in purchasing, that the data is deemed reliable but is not guaranteed by MLS GRID, and that the use of the MLS GRID Data may be subject to an end user license agreement prescribed by the Member Participant’s applicable MLS if any and as amended from time to time. MLS GRID may, at its discretion, require use of other disclaimers as necessary to protect Member Participant, and/or their MLS from liability.
Based on information submitted to the MLS GRID. All data is obtained from various sources and may not have been verified by broker or MLS GRID. Supplied Open House Information is subject to change without notice. All information should be independently reviewed and verified for accuracy. Properties may or may not be listed by the office/agent presenting the information.



Privacy Policy / DMCA Notice / ADA Accessibility

Login to My Homefinder

Pixel